Vous utilisez un navigateur Internet obsolète. Nous vous recommandons d'installer le dernier navigateur Internet pour un affichage optimal de ce site Web. Un navigateur Internet à jour garantit également une navigation sécurisée.

Malheureusement, cette propriété est loué

7500 Tournai

Description

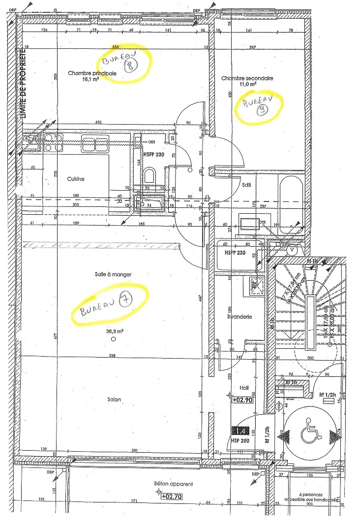
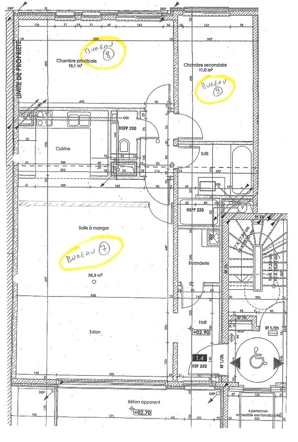
Bureaux à louer, idéalement situés à Tournai !

Entre le centre-ville et le zoning d'Orcq/Marquain (2 km), avec un accès direct aux autoroutes.

À partir de 350€ HTVA/mois, toutes charges comprises.
Ces bureaux proposent une surface allant de 14m² à 30m² avec possibilité de parking couvert (50€/mois, 4 places).

Loyer tout inclus :
- Accès 24h/24 avec alarme privative ;
- Mobilier fourni ;
- Chauffage, eau, électricité, Internet ;
- Réception courrier/colis, nettoyage ;
- Assurances et précompte immobilier ;
- Sanitaires et cuisines équipés.

Caractéristiques : double vitrage, stores anti-chaleur, chauffage central et VMC.

Disponibles immédiatement. Contactez-nous pour une visite !


Vous n'avez pas trouvé ce que vous cherchez ? N’hésitez pas à vous abonner à notre newsletter pour rester informé de nos dernières offres.
Inscrivez-vous
Retour en haut
Fermer le menu VIP Immobilier